Bogotá, Colombia
Natalia Carrero and Antonio Yemail of Yemail Arquitectura have renovated the Goethe-Institut in Bogotà creating a flexible, welcoming space that encourages socializing, diversity, and allows the public to experience more than just the teaching of the German language.

Sometimes horizontally proportioned, it occupies the room from side to side for an inauguration, a collective exhibition, or a meeting with social distancing.
It is also a waiting point with the possibility of subdivision.
With so many possibilities, maximum flexibility.
Inside, the team has removed the divisions to allow for greater circulation of light and air and configured another way of moving around that also rediscovered the space.
In the corridors, everything is communication, color, air, and the greatest possible natural lighting.
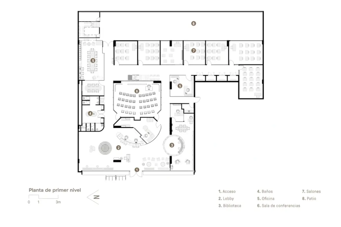
In the central room, there are classes in the morning, conferences in the afternoon, and screenings at night.

It is the physical heart of the institute and a filter for the energy of the street.
This central space, diaphanous, translucent, and flexible, is now a center for projection, conferences, and debate.
The practice has also designed pieces with performative roles, and intermediate structures that give meaning to the spaces and integrate into them.
The library is a cylindrical piece with a double face.
Inside, an intimate encounter, sitting close to the ground, feeling like in a tower of books.

Outside, a scenography, a filter between the lobby and the multipurpose room, and a structure that knows how to unfold to explore other formats of more playful and numerous activities.
The large cylindrical library and the background exhibition include functional devices at different levels and positions, which allow for the display of books while facilitating interaction with different audiences.
The installation and its capacity for openness give it the gift of having a dual personality, between dynamic and welcoming.
The furniture seeks to create an intermediate space of high intensity and traffic, considering the collective scale and personalization of the approach.

To include the feeling of domestic space, the furniture creates a gradient between collective and recreational spaces and others that are more personal.
“With a kind of ability to perceive with “visual touch,” we seek to make more than just meetings possible here,” states Yemail Arquitectura.
“From the recycling of materials to the reclamation of forgotten textures, through the curation of convergences and divergences between origins of textiles, petrochemical derivatives, plastics, glass, metals, concrete, wood, and even granite, all surfaces are loaded with information and sensory charge.”





Project: Goethe-Institut Renovation in Bogotà
Architects: Yemail Arquitectura
Lead Architects: Natalia Carrero and Antonio Yemail
Photographers: Alejandro Arango













